layers (1)

Эскизный проекта

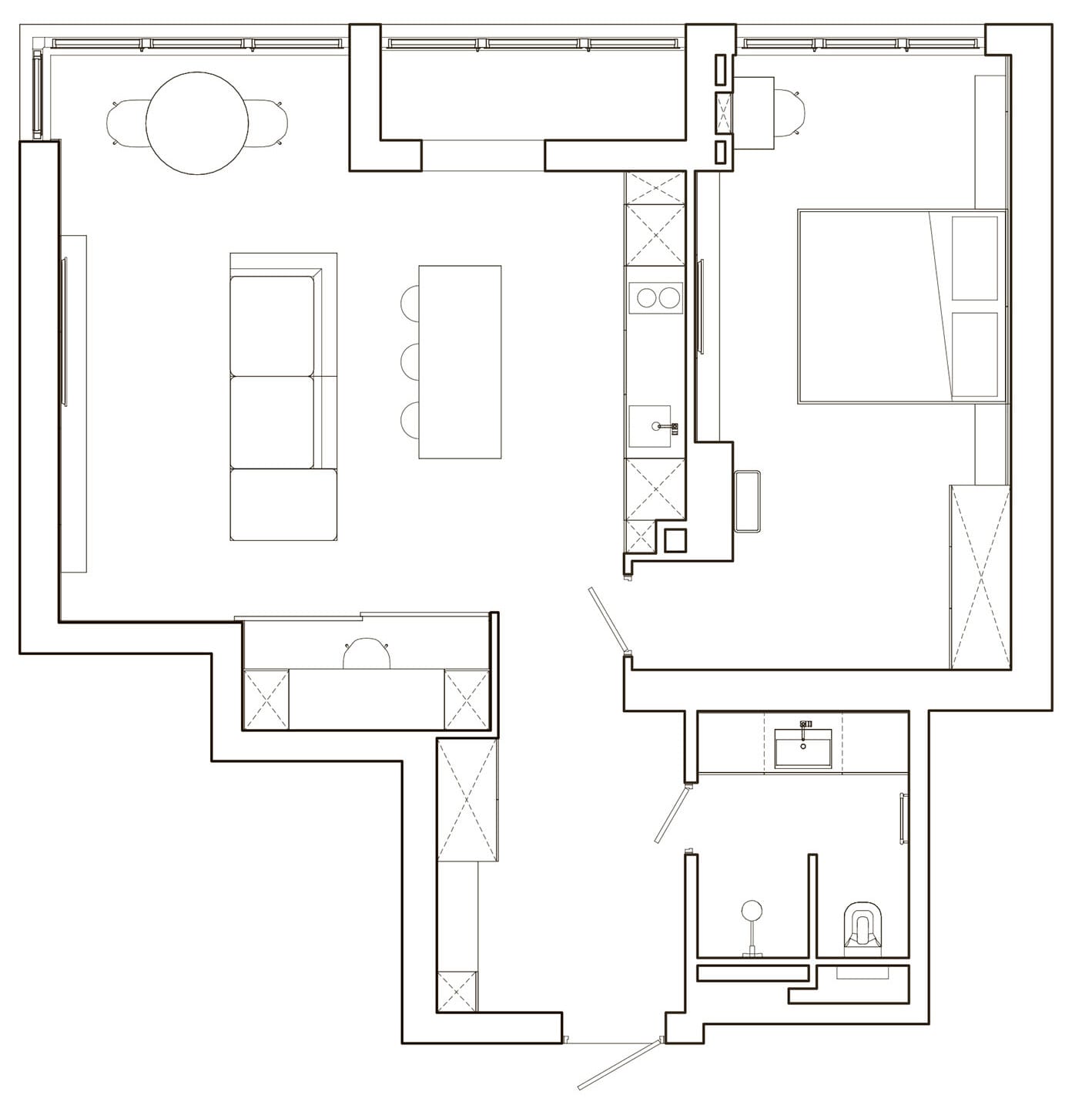
Варианты планировок, расстановки мебели, внешний вид дома и общая гармония. Подробнее

layout

Архитектурно конструктивный проект

Оптимизация материалов, расчет нагрузки на фундамент и перекрытия и т.д. Подробнее

box

Инженерный проект

Учет подходов коммуникаций, расчет отопления, вентиляции и кондиционирования Подробнее

Проекты с полным погружением

Комплексное проектирование от идеи внешнего вида до строительных решений современных каменных домов по России и СНГ

проектов домов
0 +
примеров на сайте
0 +
лет опыта
0

Услуги архитектора

Эскизный проект

800 руб за кв.м.

Определимся с
— вариантами планировок, расстановкой мебели,
— внешним видом дома и гармоничными сочетаниями материалов отделки,
— посадкой дома и других построек на участке

Дополнительно:
— Расчет предварительной сметы на строительство
— Видео-анимационный ролик к проекту

Архитектурно конструктивный проект

1500 руб за кв.м.

— подберем оптимальные материалы для дома, грамотно их «поженим»
— рассчитаем нагрузки на фундаменты, перекрытия, кровлю
— определим точное количество бетона, арматуры и прочих материалов для коробки дома

Инженерный проект

700 руб за кв.м.

— учтем проходы коммуникаций в конструкциях
— рассчитаем отопление, вентиляцию и кондиционирование
— подберем котельное оборудование
— выдадим объемы для закупки

Консультация архитектора

Надоело искать подходящий проект? Сделайте первый шаг к своему дому!

Предлагаю видео-консультацию по Skype, Zoom с возможностью показа экрана


— Разбор особенностей вашего участка с пониманием где лучше расположить дом, хозяйственные постройки и коммуникации. Узнаете какие нюансы обязательно нужно учесть с учетом опыта жизни в загородном доме

— Проанализируем ваш эскиз плана дома или понравившийся пример, разберем что можно улучшить или переработать

— Решим ваши вопросы по возможным материалам стен, отделки и конструкциям дома

— Разберем этапы строительства и возведения дома, где можно сэкономить, а где не стоит

Стоимость 5 000 руб. 1 час. (60 минут)

Если вам это полезно, то пишите «хочу разбор» на  T +7 909 289 22 70